Typ ponuky
Predaj
Typ nehnuteľnosti
Byt
Výmera
247 m2
Dispozícia
5 a viac izbové
Okres
Bratislava III
Obec
Bratislava-Nové Mesto
Ďalšie informácie o nehnuteľnosti

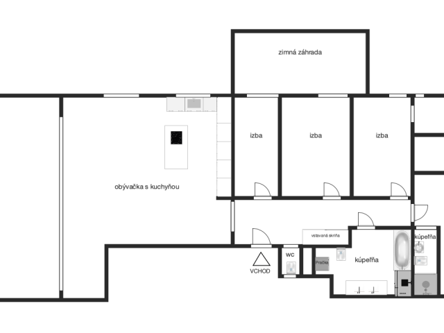
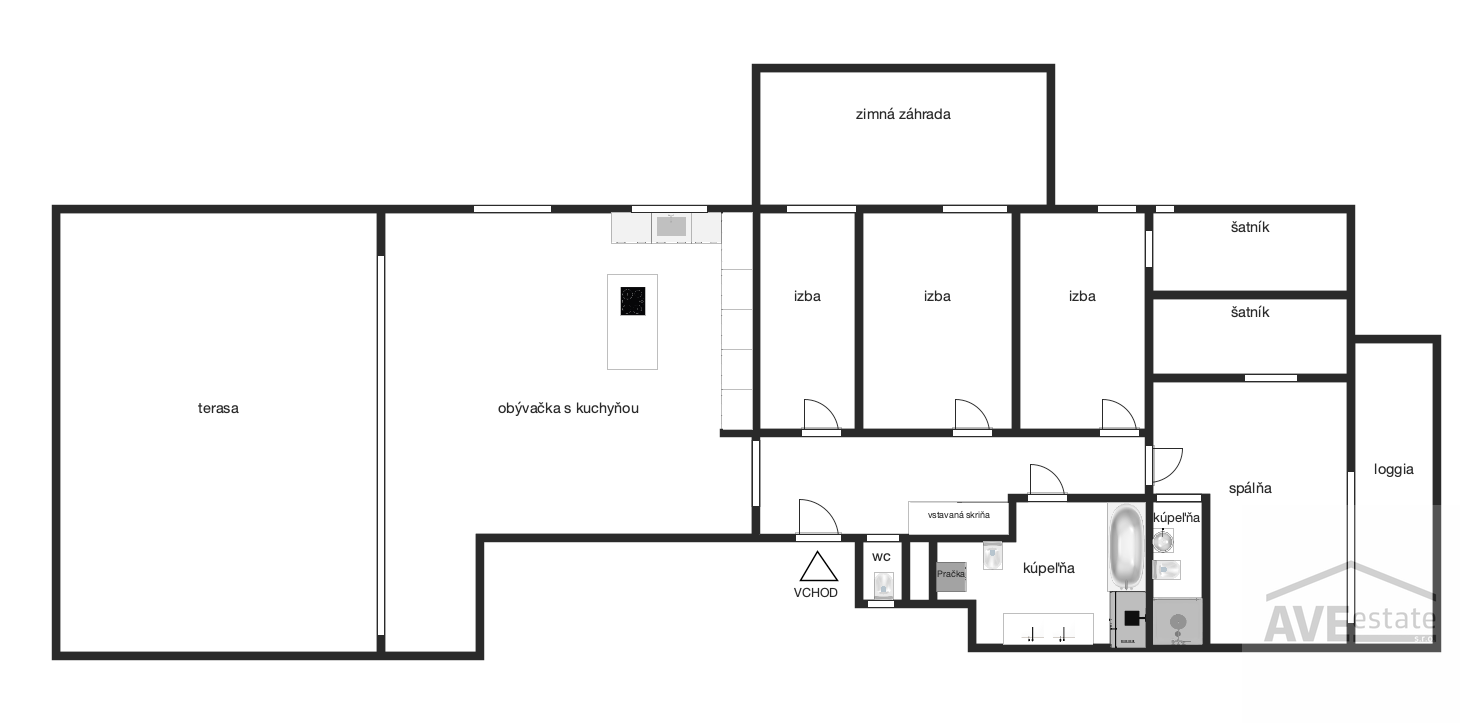
AVE estate Vám exkluzívne ponúka na predaj exkluzívny 5-izbový byt v uzavretom areáli v jednej z najprestížnejších lokalít mesta – na Kolibe.
Byt sa nachádza na 4. poschodí z 5 v komornej vile s výťahom, ktorý vedie priamo do garáže. Celková plocha nehnuteľnosti je 247 m², z čoho samotný byt má 144 m².
Komfort dopĺňa veľkorysá terasa o výmere 60 m² s jacuzzi, zimná záhrada (15 m²), loggia (10 m²) a pivnica (18 m²).

Dispozícia a orientácia
Dispozične je byt premyslene rozdelený na dennú a nočnú časť.
Dennú časť tvorí priestranná obývacia izba prepojená s kuchyňou na mieru, vybavenou zabudovanými spotrebičmi značky Miele. Nočná časť pozostáva zo štyroch samostatných izieb, dvoch šatníkov, dvoch plnohodnotných kúpeľní s toaletou a samostatnej hosťovskej toalety.
Orientácia bytu na tri svetové strany (východ, juh, západ) zabezpečuje celodenné presvetlenie:
• terasa a obývacia izba – východ
• hosťovská izba, detské izby a zimná záhrada – juh
• spálňa a loggia – západ

Technické vybavenie a štandard
Byt bol odovzdaný v stave holobyt (betón a okná) a majiteľ ho kompletne realizoval na mieru s dôrazom na nadštandardné materiály a precízne spracovanie.
Vybavenie zahŕňa:
• podlahové kúrenie s individuálnou reguláciou v každej miestnosti (spoločná kotolňa),
• stropné chladenie napojené na tepelné čerpadlo,
• inteligentnú domácnosť značky Niko,
• alarm a video vrátnik,
• bezpečnostné dvere Sherlock,
• drevené parkety,
• hliníkové okná s izolačným trojsklom, exteriérové hliníkové žalúzie a sieťky proti hmyzu,
• ethernetové pripojenie vo všetkých miestnostiach.
Kúpeľne sú vybavené veľkoformátovou dlažbou a obkladmi, sanitou značiek Hansgrohe (vodovodné batérie), Geberit (WC systémy) a kúpeľňovým nábytkom Duravit.
Terasa je vystužená kvôli vírivke, disponuje elektrickými markízami, exteriérovými zásuvkami a nemrznúcimi batériami – ideálny priestor na relax s panoramatickým výhľadom na mesto.

Parkovanie a areál
Byt sa nachádza v uzavretom rezidenčnom areáli s udržiavanou zeleňou, dvoma detskými ihriskami, komunitnou záhradou a vyhradeným miestom na grilovanie pre rezidentov.
Areál ponúka pokojné a bezpečné prostredie s dôrazom na súkromie a komunitný charakter bývania.
Návštevy môžu komfortne parkovať priamo na ulici za bytovým domom.
K bytu je možné dokúpiť:
• samostatnú garáž (16,37 m²) – 50 000 €
• garážové parkovacie miesto (29,65 m²) – 30 000 €
• vonkajšie parkovacie miesto (17 m²) – 20 000 €
Mesačné náklady:
• 300 € / mesiac (správa, fond opráv a energie) + elektrina a internet individuálne
• 19 € / mesiac náklady spojené s parkovaním
Lokalita
Koliba patrí medzi najvyhľadávanejšie rezidenčné lokality v Bratislave. Bezprostredná blízkosť lesa ponúka súkromie, pokoj a možnosti aktívneho oddychu, pričom centrum mesta je dostupné v priebehu niekoľkých minút.
Táto nehnuteľnosť svojou polohou, architektúrou a technologickým vybavením spĺňa požiadavky aj tej najnáročnejšej klientely.

Cena bytu: 1 350 000 €
V prípade záujmu o obhliadku alebo bližšie informácie nás neváhajte kontaktovať.

Kontakt na makléra

Martin Maťufka
matufka [at] aveestate.sk

Kontaktný formulár

Vyplňte kontaktný formulár a zažite na vlastnej koži čo to znamená pracovať s tými najlepšími na trhu, ktorí Vašu nehnuteľnosť odprezentujú spôsobom, ktorý ju ukáže najväčšiemu množstvu potencionálnych kupujúcich. Prečo ne/predávať s niekým iným keď môžete predávať s najlepšími?

Oboznámil/a som sa s ochranou osobných údajov. Jeho obsahu som porozumel/a a v celom rozsahu s ním súhlasím.